Grünes Isar-Living: Top 3,5-Zimmer-Stadtwohnung für Individualisten
Objektart
Wohnung
Objekttyp
Etagenwohnung
Vermarktungsart
Kauf
PLZ
80469
Ort
München / Isarvorstadt
ImmoNr
16701_3
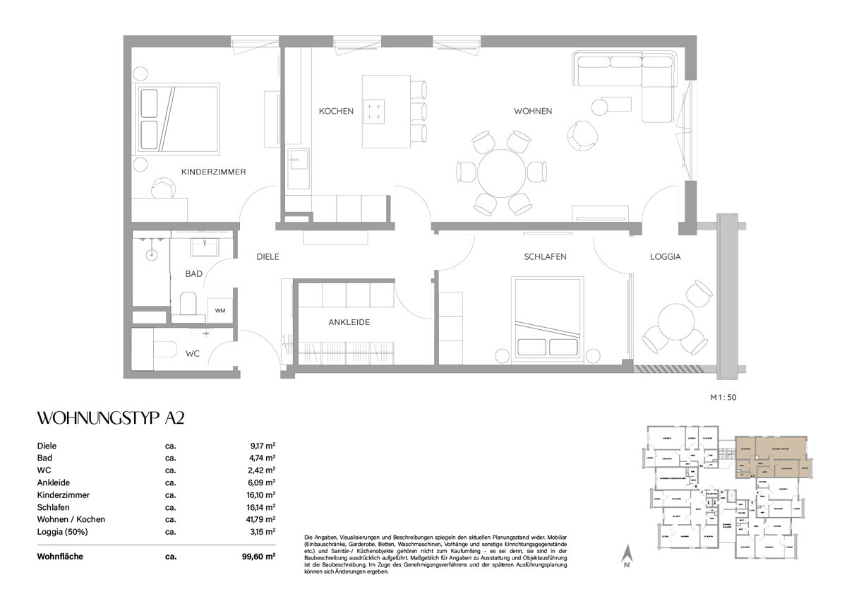
Wohnfläche
99,60 m²
Anzahl Zimmer
3,5
Anzahl Badezimmer
1
Kaufpreis
1.409.000,00 €
Baujahr
1972
Endenergiebedarf
70,2 kWh/(m²a)
Energieausweis
Bedarfsausweis
Energieausweis gültig bis
07.07.2035
Energieeffizienzklasse
B
Wesentlicher Energieträger
Fernwärme
Stellplätze
1 Duplex, 39.900 € (Kauf)
Stellplatzkaufpreis
39.900,00 €
Verfügbar ab
sofort
Description
Grünes Isar-Living: Top 3,5-Zimmer-Stadtwohnung für Individualisten!Jetzt MUSTERWOHNUNGEN besichtigen!
Das fantastische Raumkonzept dieser ideal geschnittenen 3,5-Zimmer-Wohnung umfasst auf knapp 100 m² einen großzügigen Wohn-Essbereich mit offener Küchengestaltung, ein geräumiges Schlafzimmer, eine praktische, separate Ankleide, ein weiteres, flexibel nutzbares Zimmer, ein modernes Badezimmer und zusätzlich ein Gäste-WC sowie eine große nach Südosten ausgerichtete Loggia mit fulminantem Blick ins Grüne und auf die Isar! Im Untergeschoß steht ein Kellerabteil als gut nutzbarer Stauraum zur Verfügung. Der optimale Familiengrundriss wurde soeben hochwertig und stilvoll modernisiert, wobei neben einer Vielzahl von Veränderungen edles Eichendielenparkett neu verlegt und Badezimmer sowie Gäste-WC stylisch gestaltet wurden. Ein neuer Lift sorgt für bequemen Zugang zur Wohnung. Die Beheizung erfolgt ressourcenschonend über Fernwärme. Optional besteht die Möglichkeit, einen komfortablen Stellplatz in der hauseigenen Tiefgarage zu erwerben. Neben der hochwertigen Ausstattung überzeugt dieses Objekt durch seine begehrte und unwiederbringliche Lage in der Münchner Isarvorstadt - direkt an der Isar - im lebendigen Dreimühlenviertel. Hier finden Sie eine Vielzahl an trendigen Cafés, Restaurants und Bars, die zum Verweilen einladen.
Equipment
Aufwendig modernisierte 1- bis 4-Zimmer-Wohnungen mit Wohnflächen von ca. 33m² bis ca. 110m²• Ideale, durchdachte Grundrisskonzepte –Funktionalität trifft auf Wohnkomfort: moderne Raumaufteilungen für jeden Bedarf
• Hochwertiges Eichenparkett (Hafro-Landhausdielen)
• Stylische Badezimmer (Feinsteinzeug, hansgrohe-Armaturen, Kartell by Laufen)
• Panorama-Fensterfronten (3-fach verglast) für maximalen Lichtkomfort
• Individuelle Grundrissvarianten möglich!
• Komfortable Stellplätze in der hauseigenen Tiefgarage
• Top-Lage direkt an der Isar: Natur, Erholung und hohe Lebensqualität – mitten in München
• Begehrtes Dreimühlenviertel– angesagter Hotspot zwischen Glockenbach, Schlachthof & Isarufer – besser geht’s nicht!
• Tlw. bezugsfertig & bereit zur Besichtigung
• Attraktive Kapitalanlage – bestens vermietbar in einzigartiger, unwiederbringlicher Lage
• Nachhaltig investieren mit Wertsteigerungschancen!!
Sämtlich Modernisierungsarbeiten wurden 2024 und 2025 am Gemeinschafseigentum durchgeführt. (Flachdachsanierung, neues Wärmedämmverbundsystem, neue Fenster mit 3-fach Verglasung, Neue Rollläden im EG, Neues Hauszugangselement mit integrierter Briekasten- und Klingelanlage, Erneuerung der Metallteile der Fassade wie Absturzsicherungen, seitliche
Lamellenverkleidungen bei Loggien, Erneuerung Fernwärmeunterstation, Anstrich- und Lackierarbeiten im Treppenhaus und den Gemeinschafsflächen, Erneuerung und Verstärkung der Duplexparkeinheiten)
Location
URBAN – CHARMANT – LEBENDIGDie Isarvorstadt im südlichen München gehört zu den beliebtesten Wohnlagen der Stadt. Besonders das Dreimühlenviertel überzeugt mit seiner Mischung aus Altbaucharme, Isar-nähe und lebendiger Nachbarschaft. Hier trifft urbaner Lifestyle auf gewachsene Kultur – entspannt, kreativ und charmant.
Zwischen Altstadt und Isar gelegen, bietet das Viertel kleine Boutiquen, individuelle Cafés, ausgezeichnete Restaurants und stilvolle Bars. Jede Seitenstraße überrascht mit ihrem eigenen Charakter – von bayerisch-traditionell bis international-trendig.
Die Freizeit beginnt vor der Haustür: Der Flaucher mit seinen Isarauen, der ruhige Rosengarten oder das historische Schyrenbad laden zum Abschalten ein. Kulinarische Highlights gibt’s am Viktualienmarkt oder in der Großmarkthalle. Und wer Kultur mal anders erleben will, besucht die Alte Utting – ein ehemaliges Ausflugsschiff, heute Hotspot für Streetfood, Konzerte und Sonnenuntergänge.
Wer HIER wohnt, genießt das Beste aus zwei Welten: Natur und Stadt, Rückzug und Szene – mitten in München.
Grundriss
in Gallery öffnenAnsprechpartner
Frau Melanie Klostermayer
Walser Residential GmbH
Bruderstr. 5a
80538 München
089 665960
m.klostermayer@office.walser-immobiliengruppe.de
Other Information
Dieses Exposé soll in knapper Form die wesentlichen Daten des Objekts vermitteln. Die Erfahrung lehrt, dass zu einer vernünftigen Beurteilung eines Objekts alleine die Besichtigung vor Ort sowie das persönliche Gespräch mit uns gehören. Zu beidem stehen wir, ebenso wie für weitere Informationen und Rückfragen, selbstverständlich gerne zur Verfügung. Wir freuen uns auf Ihren Anruf! Alle in diesem Exposé gemachten Angaben beruhen auf Angaben des Verkäufers bzw. von Dritten. Trotz sorgfältiger Recherche kann für etwaige Irrtümer keine Haftung übernommen werden.Im Übrigen gelten unsere allgemeinen Geschäftsbedingungen.
Ihre WALSER IMMOBILIENGRUPPE
Weitere ähnliche Immobilien
Seiten: 1




